由山西建投总承包公司实施的山阴县南站片区排水管网工程是保障高铁运行安全、根治县城内涝的关键民生工程。项目主要包含现有蓄水池改造升级、3585.6米的排水系统新建等。项目建成后,将惠及高铁南站片区及周边10个社区、12所学校、约25万居民。

山阴县南站片区排水管网工程总平面布置图
科技攻坚破难题 巧解地下“千千结”
南站片区地质条件复杂,湿陷性黄土分布广泛且地下水位较高,尤其是邻近桑干河国家湿地公园的区段,施工中面临地基沉降和基坑涌水的双重风险。针对这一难题,项目团队运用无人机高精度三维扫描技术,通过激光雷达和倾斜摄影,快速获取施工区域的高程、坡度等关键数据,为后续施工提供了可靠的数据支撑。实施“片石挤淤+集水井降水”的综合方案,一方面通过抛填片石置换软土层提升地基承载力,另一方面建设集水井系统有效控制地下水位,形成立体防护体系,成功将地基沉降控制在允许范围内,基坑涌水量大幅降低,为后续主体工程施工创造了安全稳定的作业环境。

周边地下管线和箱涵示意图
片区地下管线错综复杂,传统探测方法存在遗漏风险,施工冲突隐患突出。面对这一挑战,项目团队创新采用科技+人工双轨探测模式。一方面运用实时动态差分测量技术(RTK),通过卫星与地面基准站协同定位,实现高精度管线坐标采集,高效完成大范围普查;另一方面辅以人工摸排,通过探沟开挖和非金属探测仪验证,精准掌握复杂区域及非金属管线的空间分布。基于完整准确的管线数据,团队构建三维施工模拟系统,动态优化机械作业路径。经过多轮方案比选,成功规避6条关键交叉管线,实现施工零破坏。该方案既保障了市政基础设施安全运行,又最大限度减少了对居民生活的干扰。
迎战汛期保进度 精细管理护民生
夏季频繁降雨是制约工程进度的“拦路虎”,传统开挖清淤常被迫中断。为破解雨季施工困局,项目团队采用“分段开挖+高效抽排”技术方案。该方案通过在作业渠段两侧构筑0.5米高防渗围堰,并部署总抽水能力达400立方米/小时的水泵组,有效解决了雨季施工难题,单日清淤量提升至500立方米,效率提高约50%。截至目前,已累计完成2.8公里渠段3.3万立方米淤泥清理工作,有力推动了工程整体进展。

安全生产应急演练
针对汛期可能引发的基坑积水、边坡失稳等次生风险,团队建立健全“气象预警—物资储备—应急响应”快速联动机制。现场常备沙袋1000袋、抽水泵12台、防雨布500平方米等防汛物资,并确保气象预警发布后30分钟内防护措施全面到位。同时,定期组织防汛及基坑坍塌等应急演练,持续提升团队协同作战和实战处置能力,为汛期施工安全构筑了坚实防线。

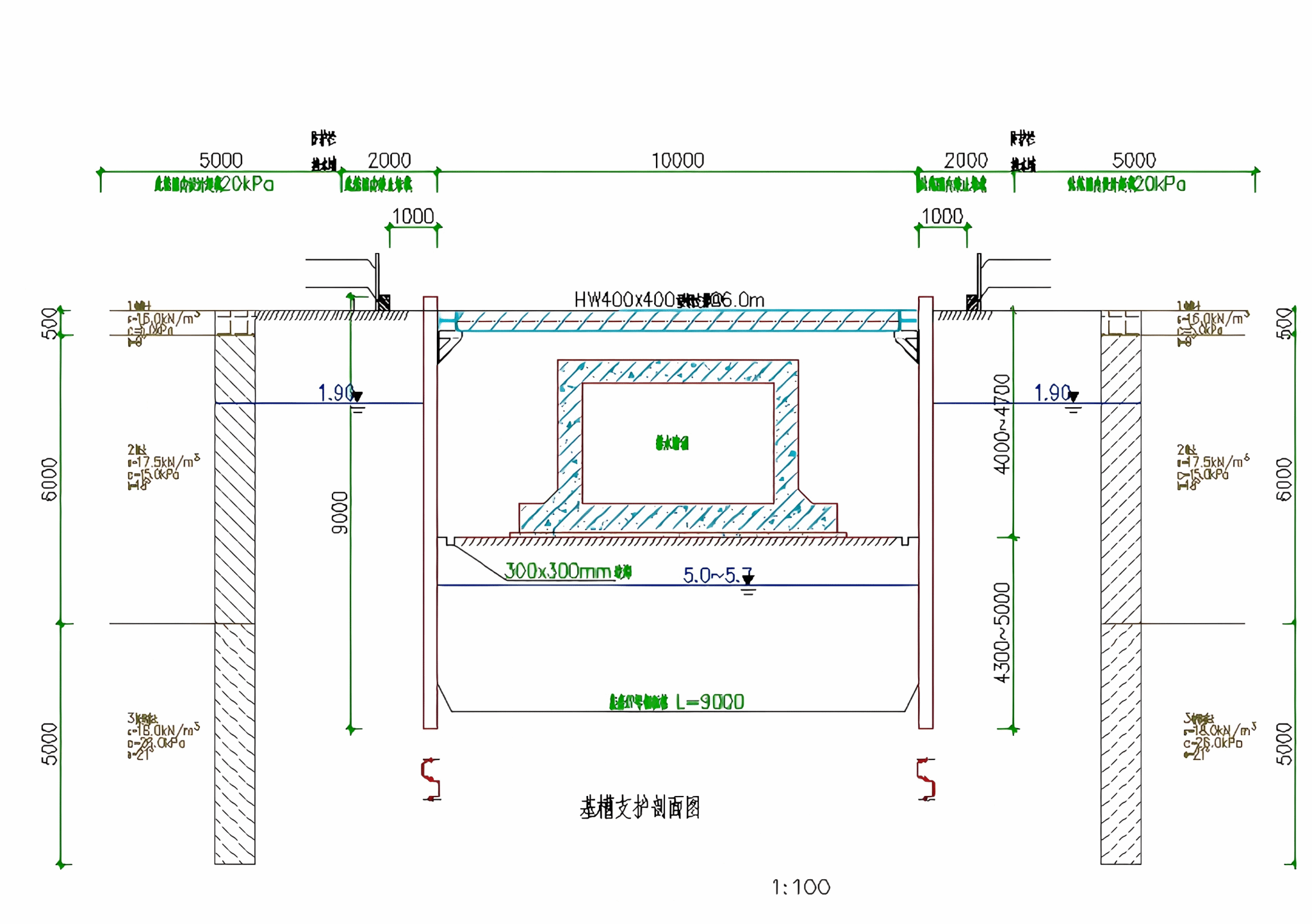
钢板桩支护设计图
工程穿越居民耕种区时,项目团队严格遵循“最小化扰民、最大化惠民”原则,采用9米长钢板桩形成连续支护结构,其中6米深入稳定土层,通过桩土摩擦力和被动土压力提供稳固支撑,地面3米露头部分与内部支撑系统协同作用,确保边坡整体稳定。同步实施的精准控水技术,通过埋设水位监测传感器动态调控降水井运行,将地下水位控制在耕作层以下,既避免了土壤流失,又保护了耕作层结构完整。为降低施工对周边环境的影响,团队严格限定主要作业时段,并配备3台雾炮机持续抑尘,结合定时洒水清扫措施,有效控制了噪音和扬尘污染,将工程对桑干河湿地及居民生活的影响降至最低。
目前,工程主体建设进度达95%,已完成2.8公里暗涵主体浇筑及14座检查井安装,附属设备预埋工作正高效推进。下一步,公司将通过优化施工组织,全力冲刺最终贯通目标。