建投动态

公司要闻

7月25日,山西建投一建集团承建的太原珈宝广场商业综合体工程项目举行开工仪式。

太原珈宝广场商业综合体工程项目是太原市实施的重点项目,一建集团始终秉承“开工必优、一次成优”的理念,传承“逢一必夺、逢旗必争”的一建铁军精神,组建坚强有力的管理团队,选择精锐高效的施工队伍,配备可靠过硬的技术力量,发扬精益求精的工匠精神,高起点谋划、高标准建设、高效率推进,打造精品工程。

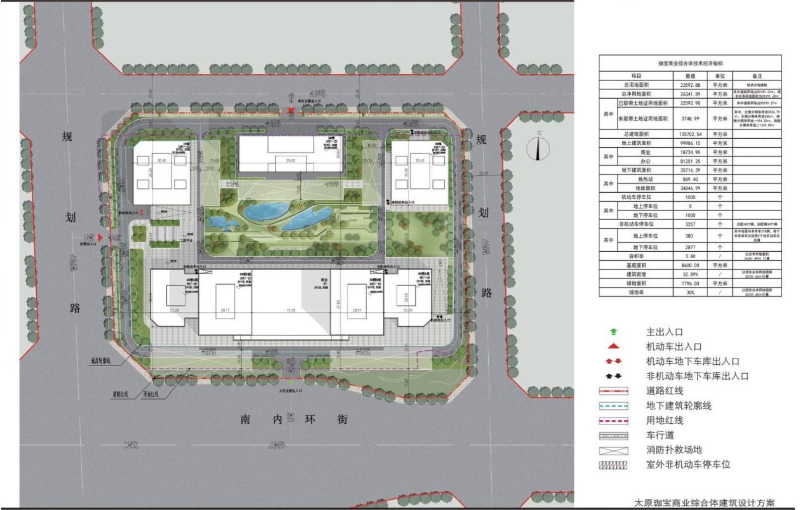
太原珈宝广场商业综合体工程项目位于太原市迎泽区,南内环街东延与马庄路交汇西北侧。项目总用地面积22592.88平方米,总建筑面积135702.54平方米,用途涉及商业和办公,规划机动车停车位1000个,容积率3.80,建筑密度32.89%,绿地率30%。